Área do Cliente
|
Acesse pelo celular

Loja comercial com 650 m², 02 pavimentos, para locação - Jardim Canadá.

Comercial padrão Loja - Jardim Canadá Comercial para Locação em Ribeirão Preto

|
Compartilhe:

DISPONÍVEL LOCAÇÃO

Imóvel disponível. Contate-nos para agendar uma visita.


Aluguel

IPTU
642,41
Comercial
Finalidade
167615
Referência
2
Dormitórios
6
Banheiros
23
Garagens
727.00 m²
A. Terreno
650.00 m²
A. Construída
Descrição do Imóvel

Localizado de frente ao Ribeirão Shopping, perto de farmácias, supermercados, lojas e diversos segmento comerciais, acesso fácil a Av. Presidente Vargas e Av. Prof. João Fiúsa.

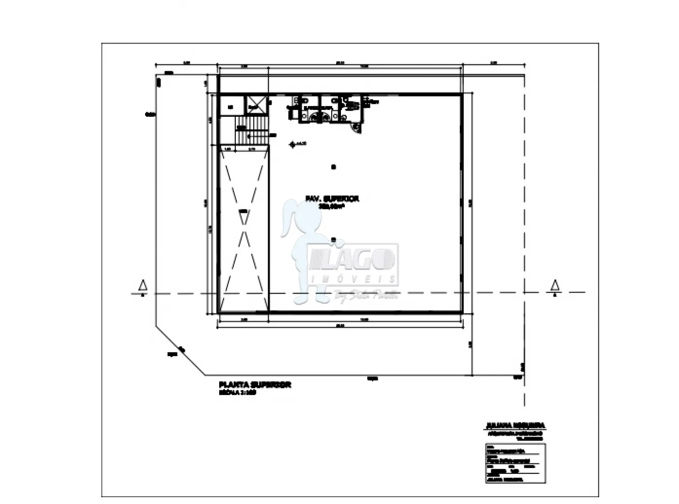
Loja comercial com 650 m², com:
-02 pavimentos;
-Pavimento térreo:
-Salão com 360 m²;
-03 banheiros, sendo 01 adaptado;
-Copa;
-Pavimento superior:
-Salão com 285 m²;
-03 banheiros, sendo 01 adaptado;
-Copa;

Diferenciais:
-Frente moderna;
-Projeto diferenciado;
-Frente toda em vidro;
-Elevador;
-Escada;
-Pé direito duplo na entrada;

Obs. Está em construção, previsto término em torno de 02 meses (+ou- dezembro/25). Fotos ilustrativas.

Para mais informações e agendar visita, entre em contato.

Lago é Relacionamento! Esta é a nossa missão, nosso propósito e o verdadeiro sentido de tudo que fazemos. Todos os dias construímos laços fortes e indeléveis com nossos proprietários e clientes. Somos uma imobiliária que, desde a nossa fundação em 1987, equilibra a tradicionalidade com o arrojo e a força comercial da atualidade. Temos mais de 140 funcionários e parceiros de negócios e ao longo da nossa caminhada já administramos mais de 20.000 locações e realizamos mais de 3.000 vendas de imóveis. Temos o maior inventário de cadastros de imóveis de Ribeirão Preto e região com mais de 20.000 opções, em todos os cantos da cidade, para todos os padrões e para todos os gostos de nossos clientes. Se você deseja comprar, alugar ou negociar seu próprio imóvel, nós somos a imobiliária certa, porque para a Lago o que vale é o relacionamento, portanto, venha tomar um café conosco em uma de nossas três lojas: Lago Vendas - Av. Presidente Vargas, 407, Lago Locação - Rua Barão do Amazonas, 1700 e Lago Administrativo/Cadastro - Rua Altino Arantes, 644.

Vídeo do Imóvel

Panorâmica

Localização Comercial padrão / Loja em Ribeirão Preto

DISPONÍVEL LOCAÇÃO

Imóvel disponível. Contate-nos para agendar uma visita.



Aluguel

IPTU
642,41

Total / Mês
60.642,41

DÚVIDAS SOBRE O IMÓVEL
PREENCHA O FORMULÁRIO


Concordo com os Termos e Privacidade
Imóveis Similares